پیها چگونه با استفاده از جت گروتینگ تقویت میشوند؟
بهسازی سازههای موجود، به ویژه سازههای قدیمیتر، مهندسان اغلب با چالشهایی مربوط به ظرفیت باربری ناکافی خاک یا شرایط ناشناخته پیها مواجه میشوند.
به جای روشهای سنتی تقویت که نیاز به حفاری گسترده دارند و با محیط اطراف تداخل دارند، جت گروتینگ به طور فزایندهای به عنوان یک جایگزین موثر مورد استفاده قرار میگیرد. این تکنیک امکان بهبود و تثبیت خاک پی را فراهم میکند و تأثیر زیستمحیطی و اختلال در سازههای موجود را به حداقل میرساند.
جت گروتینگ چگونه کار میکند؟
جت گروتینگ خاک را به یک توده سفت و مسلح به سیمان با قطری که معمولاً بسته به نوع خاک بین ۶۰ سانتیمتر تا ۱۰۰ سانتیمتر متغیر است، تبدیل میکند.
این فرآیند شامل حفاری تا عمق مورد نظر و به دنبال آن تزریق دوغاب سیمانی تحت فشار زیاد از طریق نازلهای مخصوص است. جت پرانرژی ساختار خاک را میشکند، آن را با سوسپانسیون سیمان مخلوط میکند و یک جسم استوانهای جامد را تشکیل میدهد که به عنوان ستون جت گروتینگ شناخته میشود.
طراحی
کاربرد موفقیتآمیز روش جت گروتینگ به همکاری نزدیک بین مهندسان ژئوتکنیک و طراحان سازه متکی است. این سیستم شامل تعامل پیچیدهای بین خاک، ناحیه بهبود یافته (دوغابریزی شده) وبنای ردی خاک است – که هماهنگی در هر مرحله را ضروری میسازد.
مهندسان ژئوتکنیک مسئول تجزیه و تحلیل شرایط زیر خاک موجود، پروفیل زمینشناسی خاک و سطح آبهای زیرزمینی و همچنین انتخاب و توصیه نوع و تکنیک بهینه دوغابریزی هستند. بر اساس این یافتهها، آنها پارامترهای کلیدی طراحی مانند فشار تزریق، قطر و شیب مورد انتظار ستون و خواص مواد را تعریف میکنند.
از سوی دیگر، مهندسان سازه، دادههای ورودی بار – نیروهایی که سیستم فونداسیون باید به زمین منتقل کند – را ارائه میدهند. این نیروها شامل بارهای ناشی از عناصر فونداسیون (نوارها، پدها یا دالها) و نیروهایی هستند که بر روی ستونهای جت گروتینگ شده منفرد، بسته به طرح فونداسیون پیشنهادی مهندس ژئوتکنیک، عمل میکنند. این اطلاعات برای طراحی نهایی و بهینهسازی سیستم ستون، از جمله تعیین قطر، طول، فاصله و تعداد شمعها ، بسیار مهم است.
در طول این فرآیند، هر دو تیم از طریق مدلسازی تحلیلی و عددی تکراری، با شبیهسازی تعامل بین سازه و خاک، همکاری میکنند. نتایج، بینشی در مورد ظرفیت باربری میکروپایلها رفتار گروهی و پاسخ به نشست ارائه میدهد.
هدف از این رویکرد میانرشتهای، دستیابی به یک راهحل بهینه، ایمن و مقرونبهصرفه برای فونداسیون است که هم ظرفیت باربری و هم پایداری بلندمدت را با حداقل ریسک در طول ساخت و استفاده تضمین میکند.
مراحل اجرا
پس از توافق نهایی طرح بین مهندسان ژئوتکنیک و سازه، اجرای جت گروتینگ در مراحل کلیدی زیر انجام میشود:
- حفاری تا عمق طراحی، از طریق خاک موجود یا زیر پی سازه
- تزریق دوغاب سیمان با فشار بالا از طریق نازلها تزریق میشود و با خاک اطراف مخلوط میشود
- اجرای میکرو پایل – میله حفاری به آرامی چرخانده و خارج میشود و یک ستون استوانهای ایجاد میکند
- تشکیل شمع – در عرض چند روز، ماده دوغاب ریزی شده به یک توده پایدار، نفوذناپذیر و باربر تبدیل میشود.
در طول کل فرآیند، پارامترهای حیاتی مانند فشار تزریق، سرعت بالا بردن و مصرف سیمان به طور مداوم کنترل میشوند تا از کیفیت و هندسه ستون اطمینان حاصل شود.

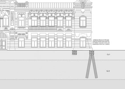
شکل ۱. نصب اولین ستونهای جت گروتینگ

شکل ۲. نصب ستونهای تزریق جت دوم از داخل

شکل ۳. تکرار این روش روی پایههای باقیمانده
مزایا
روش جت گروتینگ چندین مزیت کلیدی ارائه میدهد:
- میتواند بدون حفاری گسترده یا حتی کاملاً زیر سازههای موجود انجام شود
- میتواند زیر سطح آب زیرزمینی اجرا شود
- ظرفیت باربری و سختی خاک فونداسیون را بهبود میبخشد
- انعطافپذیری را برای استفاده در شرایط مختلف خاک و فضاهای محدود فراهم میکند
کنترل کیفیت
کنترل کیفیت شامل نظارت مداوم بر پارامترهای عملیاتی و در صورت نیاز، ستونهای آزمایشی برای تأیید عملکرد است. پس از اتمام، نظارت ژئودزیکی برای تأیید عدم جابجایی ناخواسته انجام میشود.
نتیجهگیری
ستونهای جت گروتینگ یک راه حل قابل اعتماد و سازگار برای تقویت فونداسیونها، به ویژه برای سازههای موجود یا حساس هستند. آنها افزایش قابل توجهی در ظرفیت باربری خاک و پایداری فونداسیونها با حداقل اختلال محیطی یا سازهای را ممکن میسازند.
موفقیت این روش به برنامهریزی دقیق، همکاری خوب بین رشتهای و نظارت کامل در حین اجرا بستگی دارد. نتیجه، یک سیستم فونداسیون ایمن، بادوام و از درون تقویت شده است.







